BCJ Immobilier Agence
Vendu

Maison 3 pièce(s) 2 chambre(s) 75 m²

Louroux-Hodement ()
28 500 € Référence 156

A propos de ce bien

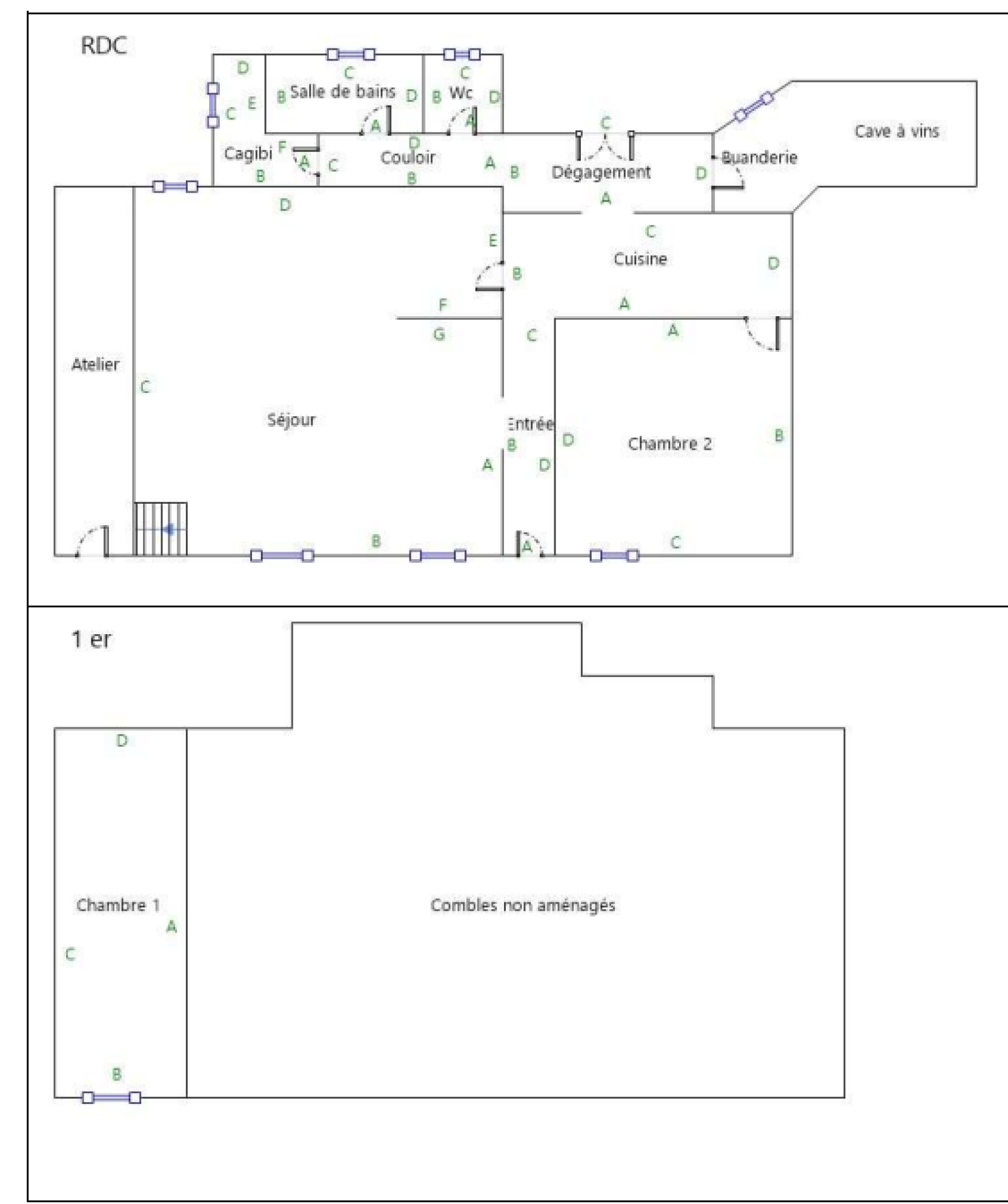
Dans le village dynamique de Louroux-Hodement : école primaire, aire de jeux pour enfants, maison médicale, boulangerie, épicerie, salon de coiffure, Cosne d'Allier à 10 mn, Montluçon à 20 mn, A proximité de sites touristiques appréciés et dans un environnement naturel préservé (Pays et Forêt de Tronçais, Forêt de Lespinasse, Château de Hérisson, le lagon, etc.) et dans un environnement préservé, Sur une parcelle d'environ 575 m2, maison à rénover : Entrée, cuisine, salon/séjour, 2 chambres, salle de bains, WC, buanderie, cave Plusieurs dépendances à réhabiliter Beau jardin Maison raccordée au tout à l'égout - Taxe foncière attractive : 372 euros Chauffage : chaudière électrique récente + radiateurs - eau chaude sanitaire : ballon électrique Diagnostics techniques immobilier réalisés le 18/10/2022, documents disponibles pour consultation. - DPE : logement à consommation énergétique excessive Montant estimé des dépenses annuelles d'énergie (chauffage, eau chaude, éclairage, et annexes, abonnements compris) pour un usage standard : entre 2340 € et 3210 €/ an - Date de référence des prix de l'énergie utilisés pour établir cette estimation : 2021 Prix de vente : 28500 € (Honoraires de négociation à la charge exclusive du vendeur) A visiter !
Les informations sur les risques auxquels ce bien est exposé sont disponibles sur le site Géorisques

Caractéristiques de ce bien

  • Surface 75 m²
  • terrain 575 m²
  • 2 chambre(s)
  • 1 salle(s) de bain
  • cuisine séparée
  • Chauffage central : radiateur (electrique)
  • 1 garage(s)
  • 2 parking(s)
  • 1 côté(s) mitoyen(s)
  • 1 niveau(x)
  • vue Village / campagne
  • cave
  • terrasse
  • piscinable

Diagnostics énergétiques

DPE
GES

Logement à consommation énergétique excessive : classe G

Montant estimé des dépenses annuelles d'énergie de ce logement pour un usage standard est compris entre 2 340 € et 3 210 € . 2021 étant l'année de référence des prix de l'énergie utilisés pour établir cette estimation.

Informations financières

Prix de vente 28 500 € Les honoraires d'agence seront intégralement à la charge du vendeur
Taxe foncière annuelle 372 €

Calcul des mensualités

* Champs obligatoires